エコスマの厳選人気プラン
PLAN
39.57坪プラン
【在宅ワーク/子育て世代】家事ラク回遊動線と書斎のある家
==========================================
大型ファミクロが叶える「ただいま動線」。家族時間も自分時間も大切にする家
==========================================
今回ご紹介するのは、延床面積39.57坪の3LDK+書斎プランです。この家の最大の魅力は、「暮らしやすさ」を徹底的に追求した間取りの工夫にあります。
玄関から続く「ただいま動線」、家事を劇的に楽にする「1階ファミリークローゼット」、そして家族それぞれの時間を豊かにする「スタディコーナー」と「書斎」。日々の生活を丁寧に考え抜いた、家族みんなが笑顔になる住まいの魅力を、俯瞰図と共にご紹介します。
▼ 間取りのコンセプト
------------------------------------------
「片付く仕組み」と「心地よい距離感」
------------------------------------------
この家のコンセプトは、まず「家族の動線」をデザインすること。玄関→シューズインクローク→ファミリークローゼット→洗面所→LDKと続く「ただいま動線」は、外からの汚れをリビングに持ち込まず、自然と片付く習慣を育みます。
そしてもう一つは、家族が一緒に過ごす時間と、一人ひとりが集中したりリラックスしたりする時間の両方を大切にできる「心地よい距離感」の設計です。
▼ ポイントPICKUP
------------------------------------------
【1階ファミクロ】暮らしの中心にある、最強収納!
------------------------------------------
この家の心臓部とも言えるのが、1階のホールに設けられた大型のファミリークローゼットです。ただいま動線の一部として、帰宅後すぐにコートやカバン、ランドセルをここに収納できます。
さらに、日常的に着る服をここにまとめておけば、朝の身支度も1階で完結。洗濯物を畳んでから各部屋に運ぶ手間も省け、家事の負担を大幅に軽減します。
------------------------------------------
【LDK+スタディコーナー】家族が集まる、明るく多機能な大空間
------------------------------------------
20.6帖の広々としたLDKは、家族が自然と集まる憩いの場。その一角にはスタディコーナーが設けられています。キッチンから目の届く場所なので、お子様が宿題をしている様子を見守ったり、ちょっとしたPC作業をしたりと、家族の気配を感じながら過ごせる便利なスペースです。
------------------------------------------
「自分時間」を豊かにする書斎と寝室
------------------------------------------
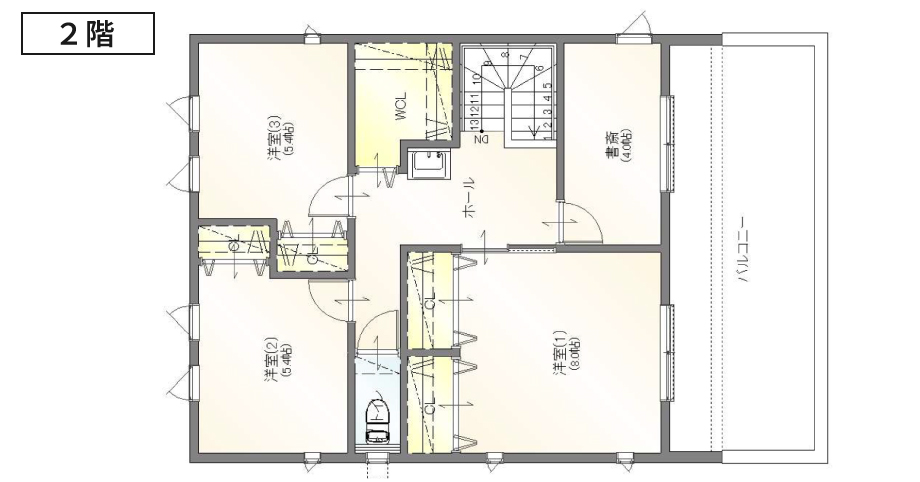
2階には、3つの洋室に加え、4.0帖の「書斎」が用意されています。リモートワークやオンライン会議に集中できる部屋として、また、趣味や読書に没頭する自分だけの空間として、暮らしの可能性を大きく広げてくれます。
8.0帖の主寝室は、一日の疲れを癒すのに十分な広さ。ホールには家族みんなの季節物などもしまえるウォークインクローゼットも完備しています。
/
こんなご家族におすすめ
\
✓共働きや子育てで忙しいご家族
:家事や身支度が効率的にこなせる動線が、毎日にゆとりを生み出します。
✓在宅ワークや自宅で勉強する時間が多いご家族
:書斎とスタディコーナーが、仕事と勉強の効率をアップさせます。
✓「片付け」を楽にしたい、いつもスッキリした家で暮らしたいご家族
:ただいま動線とファミクロが、自然と片付く習慣をサポートします。
✓家族との時間も一人の時間も、両方大切にしたいご家族
:考えられた間取りが、心地よい距離感を生み出します。
間取りひとつで、毎日の生活はもっと楽しく、もっと豊かになります。そんな「暮らしのデザイン」が詰まったプランのご紹介でした。
もっと詳しく知りたい方は、ぜひお気軽にお問い合わせください。
大型ファミクロが叶える「ただいま動線」。家族時間も自分時間も大切にする家
==========================================
今回ご紹介するのは、延床面積39.57坪の3LDK+書斎プランです。この家の最大の魅力は、「暮らしやすさ」を徹底的に追求した間取りの工夫にあります。
玄関から続く「ただいま動線」、家事を劇的に楽にする「1階ファミリークローゼット」、そして家族それぞれの時間を豊かにする「スタディコーナー」と「書斎」。日々の生活を丁寧に考え抜いた、家族みんなが笑顔になる住まいの魅力を、俯瞰図と共にご紹介します。
▼ 間取りのコンセプト
------------------------------------------
「片付く仕組み」と「心地よい距離感」
------------------------------------------
この家のコンセプトは、まず「家族の動線」をデザインすること。玄関→シューズインクローク→ファミリークローゼット→洗面所→LDKと続く「ただいま動線」は、外からの汚れをリビングに持ち込まず、自然と片付く習慣を育みます。
そしてもう一つは、家族が一緒に過ごす時間と、一人ひとりが集中したりリラックスしたりする時間の両方を大切にできる「心地よい距離感」の設計です。
▼ ポイントPICKUP
------------------------------------------
【1階ファミクロ】暮らしの中心にある、最強収納!
------------------------------------------
この家の心臓部とも言えるのが、1階のホールに設けられた大型のファミリークローゼットです。ただいま動線の一部として、帰宅後すぐにコートやカバン、ランドセルをここに収納できます。
さらに、日常的に着る服をここにまとめておけば、朝の身支度も1階で完結。洗濯物を畳んでから各部屋に運ぶ手間も省け、家事の負担を大幅に軽減します。
------------------------------------------
【LDK+スタディコーナー】家族が集まる、明るく多機能な大空間
------------------------------------------
20.6帖の広々としたLDKは、家族が自然と集まる憩いの場。その一角にはスタディコーナーが設けられています。キッチンから目の届く場所なので、お子様が宿題をしている様子を見守ったり、ちょっとしたPC作業をしたりと、家族の気配を感じながら過ごせる便利なスペースです。
------------------------------------------
「自分時間」を豊かにする書斎と寝室
------------------------------------------
2階には、3つの洋室に加え、4.0帖の「書斎」が用意されています。リモートワークやオンライン会議に集中できる部屋として、また、趣味や読書に没頭する自分だけの空間として、暮らしの可能性を大きく広げてくれます。
8.0帖の主寝室は、一日の疲れを癒すのに十分な広さ。ホールには家族みんなの季節物などもしまえるウォークインクローゼットも完備しています。
/
こんなご家族におすすめ
\
✓共働きや子育てで忙しいご家族
:家事や身支度が効率的にこなせる動線が、毎日にゆとりを生み出します。
✓在宅ワークや自宅で勉強する時間が多いご家族
:書斎とスタディコーナーが、仕事と勉強の効率をアップさせます。
✓「片付け」を楽にしたい、いつもスッキリした家で暮らしたいご家族
:ただいま動線とファミクロが、自然と片付く習慣をサポートします。
✓家族との時間も一人の時間も、両方大切にしたいご家族
:考えられた間取りが、心地よい距離感を生み出します。
間取りひとつで、毎日の生活はもっと楽しく、もっと豊かになります。そんな「暮らしのデザイン」が詰まったプランのご紹介でした。
もっと詳しく知りたい方は、ぜひお気軽にお問い合わせください。
| 坪数 | 39.57坪 |
|---|---|
| 延床 面積 |
130.83㎡ |
| 間取り | 3LDK + 書斎 + WCL + FCL + SIC + スタディコーナー |
| 家族 構成 |
夫婦+子供2人 |