エコスマの厳選人気プラン
PLAN
43.32坪プラン
【縦長敷地】×【ビルトインガレージ】のある家
==========================================
縦長の敷地を、暮らしの楽しさに変える家
==========================================
今回ご紹介するのは、延床面積43.32坪の3LDKプランです。一見すると制約の多い縦長の敷地を、設計の工夫によって「暮らしの楽しさ」が詰まった空間へと昇華させました。
雨の日も安心のビルトインガレージ、開放感あふれる吹抜け、そして家族の時間を豊かにする「2つのリビング」。ユニークな敷地形状を最大限に活かした、趣味と暮らしが融合する住まいの魅力をご紹介します。
▼ 間取りのコンセプト
------------------------------------------
「ゾーニング」で暮らしにメリハリを
------------------------------------------
この家の設計のポイントは、空間を巧みに「ゾーニング(役割分け)」することです。
1階は家族みんなが集まる「パブリックなLDK」、2階はゆったりと寛ぐ「プライベートなセカンドリビング」と役割を分け、吹抜けを介して緩やかにつなげました。これにより、家族が一緒に過ごしながらも、それぞれの時間や活動を尊重できる、心地よい暮らしの距離感が生まれます。
▼ ポイントPICKUP
------------------------------------------
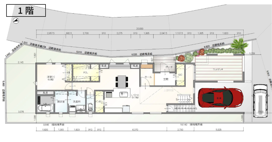
【ビルトインガレージ】暮らしに直結する、多目的スペース
------------------------------------------
この家の大きな特徴の一つが、住まいと一体になったビルトインガレージです。天候を気にせず車から室内へスムーズに移動できるのはもちろん、愛車を安全に保管できます。
車やバイクのメンテナンス、DIYの作業場、アウトドア用品の収納庫など、趣味の空間としても大活躍。玄関と直結しているため、買い物帰りの重い荷物を運び込む際にも非常に便利です。
------------------------------------------
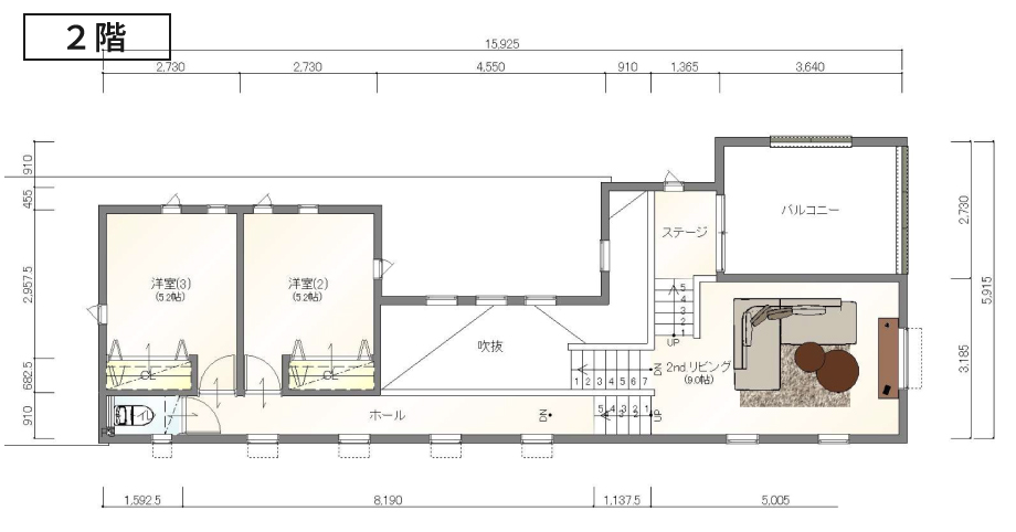
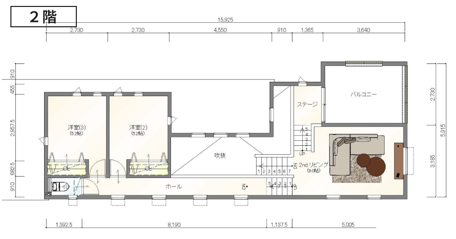
【2階セカンドリビング】暮らしの幅を広げる、もう一つの寛ぎの場
------------------------------------------
階段を上がった先には、9.0帖のセカンドリビングが広がります。1階のLDKが「集いの場」なら、こちらは「寛ぎの場」。大きなソファを置いてホームシアターを楽しんだり、静かに読書をしたり、お子様専用のプレイルームにしたりと、家族のライフスタイルに合わせて自由に使える贅沢な空間です。
大きな窓から繋がるバルコニーも、内と外を繋ぐ開放的なスペースとして活躍します。
------------------------------------------
【1階洋室+FCL】柔軟性の高いプライベート空間
------------------------------------------
1階の奥には、5.2帖の洋室が配置されています。客間としてはもちろん、小さなお子様のお昼寝や遊び場にも最適です。リモートワークなどで書斎として活用するのも〇。
ファミリークローゼットが併設されているため、主寝室として利用すれば、将来的に1階だけで生活を完結させることも可能です。
/
こんなご家族におすすめ
\
✓縦長の敷地や変形地での建築を検討しているご家族
:敷地形状をネガティブに捉えず、魅力的な空間に変えるヒントが満載です。
✓車やバイク、DIYなど多趣味なご家族
:ビルトインガレージが、趣味の時間をより豊かにします。
✓家族が集まる時間と、それぞれの時間を両立させたいご家族
:2つのリビングが、暮らしに心地よいリズムを生み出します。
✓開放感や採光を重視するご家族
:吹抜けがもたらす明るさと縦への広がりが、日々の暮らしを豊かに彩ります。
設計の力で、土地の個性を暮らしの喜びに変える。そんな家づくりの楽しさが詰まったプランのご紹介でした!
もっと詳しく知りたい方は、ぜひお気軽にお問い合わせください。
縦長の敷地を、暮らしの楽しさに変える家
==========================================
今回ご紹介するのは、延床面積43.32坪の3LDKプランです。一見すると制約の多い縦長の敷地を、設計の工夫によって「暮らしの楽しさ」が詰まった空間へと昇華させました。
雨の日も安心のビルトインガレージ、開放感あふれる吹抜け、そして家族の時間を豊かにする「2つのリビング」。ユニークな敷地形状を最大限に活かした、趣味と暮らしが融合する住まいの魅力をご紹介します。
▼ 間取りのコンセプト
------------------------------------------
「ゾーニング」で暮らしにメリハリを
------------------------------------------
この家の設計のポイントは、空間を巧みに「ゾーニング(役割分け)」することです。
1階は家族みんなが集まる「パブリックなLDK」、2階はゆったりと寛ぐ「プライベートなセカンドリビング」と役割を分け、吹抜けを介して緩やかにつなげました。これにより、家族が一緒に過ごしながらも、それぞれの時間や活動を尊重できる、心地よい暮らしの距離感が生まれます。
▼ ポイントPICKUP
------------------------------------------
【ビルトインガレージ】暮らしに直結する、多目的スペース
------------------------------------------
この家の大きな特徴の一つが、住まいと一体になったビルトインガレージです。天候を気にせず車から室内へスムーズに移動できるのはもちろん、愛車を安全に保管できます。
車やバイクのメンテナンス、DIYの作業場、アウトドア用品の収納庫など、趣味の空間としても大活躍。玄関と直結しているため、買い物帰りの重い荷物を運び込む際にも非常に便利です。
------------------------------------------
【2階セカンドリビング】暮らしの幅を広げる、もう一つの寛ぎの場
------------------------------------------
階段を上がった先には、9.0帖のセカンドリビングが広がります。1階のLDKが「集いの場」なら、こちらは「寛ぎの場」。大きなソファを置いてホームシアターを楽しんだり、静かに読書をしたり、お子様専用のプレイルームにしたりと、家族のライフスタイルに合わせて自由に使える贅沢な空間です。
大きな窓から繋がるバルコニーも、内と外を繋ぐ開放的なスペースとして活躍します。
------------------------------------------
【1階洋室+FCL】柔軟性の高いプライベート空間
------------------------------------------
1階の奥には、5.2帖の洋室が配置されています。客間としてはもちろん、小さなお子様のお昼寝や遊び場にも最適です。リモートワークなどで書斎として活用するのも〇。
ファミリークローゼットが併設されているため、主寝室として利用すれば、将来的に1階だけで生活を完結させることも可能です。
/
こんなご家族におすすめ
\
✓縦長の敷地や変形地での建築を検討しているご家族
:敷地形状をネガティブに捉えず、魅力的な空間に変えるヒントが満載です。
✓車やバイク、DIYなど多趣味なご家族
:ビルトインガレージが、趣味の時間をより豊かにします。
✓家族が集まる時間と、それぞれの時間を両立させたいご家族
:2つのリビングが、暮らしに心地よいリズムを生み出します。
✓開放感や採光を重視するご家族
:吹抜けがもたらす明るさと縦への広がりが、日々の暮らしを豊かに彩ります。
設計の力で、土地の個性を暮らしの喜びに変える。そんな家づくりの楽しさが詰まったプランのご紹介でした!
もっと詳しく知りたい方は、ぜひお気軽にお問い合わせください。
| 坪数 | 43.32坪 |
|---|---|
| 延床 面積 |
143.25㎡ |
| 間取り | 3LDK + 2ndリビング + 吹抜け + FCL + SIC + パントリー + ビルトインガレージ |
| 家族 構成 |
夫婦+子供2人 |